Appartement de haut standing à Arzier

location 3.5 pièces
location 4'950 chf
Si vous êtes à la recherche d’un véritable havre de paix, niché dans un environnement calme et naturel, cette ancienne ferme entièrement rénovée et transformée, abritant désormais trois appartements de haut standing, saura vous séduire.

Située à l’écart de l’agitation urbaine dans la charmante commune d’Arzier, cette propriété offre un cadre paisible et une vue imprenable sur les Alpes et le lac Léman.

Les appartements, réalisés avec goût, allient le charme des poutres apparentes au confort des aménagements modernes.

Profitez également d’un emplacement privilégié : la gare du NStCM de Bassins se trouve à moins de cinq minutes à pied, tandis que Nyon, Gland et les grands axes routiers sont accessibles en moins de vingt minutes en voiture.

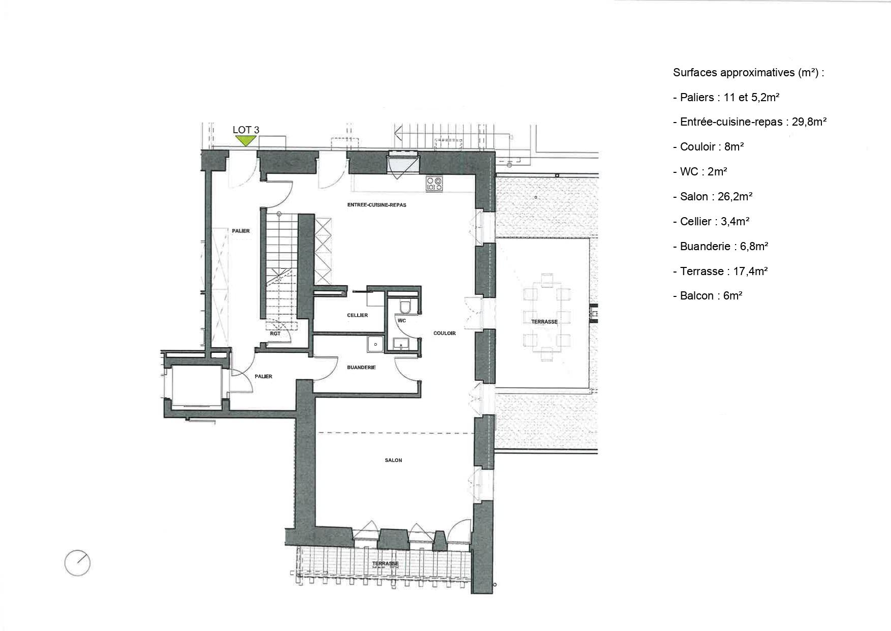
Le lot N°3 de 3,5 pièces au 1er étage en duplex se décline de la manière suivante :

1er étage :
Un hall d'entrée avec armoires murales;
Une cuisine agencée et entièrement équipée;
Un séjour avec balcon donnant sur le lac et les Alpes;
Un WC visiteur;
Une buanderie avec lave-linge et sèche-linge;
Un cellier; 
Une terrasse avec espace de rangement;
Un jardin

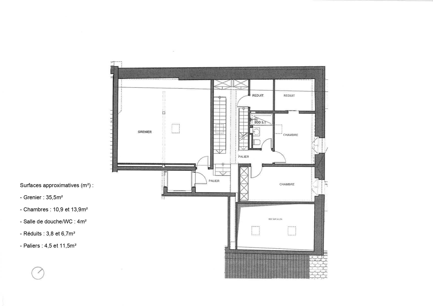
Combles :
Une chambre avec réduit;
Une chambre;
Une salle de douche/WC;
Un réduit;
Un grand grenier;

Surface totale utile principale : env. 126m²

Loyer : CHF 4'950.00
Charges : CHF 300.00
Places de parc extérieures couvertes : CHF 150.00/place
Places de parc extérieures : CHF 80.00/place

Disponibilité : 1er trimestre 2026

Pour tout complément d'information au sujet de ces biens d'exception, n'hésitez pas à contacter notre service location au 022 360 90 90.

*Les surfaces indiquées dans cette annonce sont données à titre purement indicatif et ne peuvent faire l’objet d’aucune contestation.

Caractéristiques

Num Référence Domaine "Les Cotteaux" - Lot N°3
Type de bien Appartement
Localité Arzier
Adresse
Loyer (sans les charges) 4'950 chf
Nbre de pièce(s) 3.5
Nbre de salle(s) de bains 1
Nbre de chambre(s) 2
État général Nouveau


+41 22 360 90 90 Nous écrire Demande de location